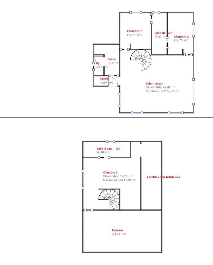
VENDRE Maison atypique à Collias (30210) Dans un cadre naturel exceptionnel, à deux pas des gorges du Gardon, découvrez cette maison atypique de 115 m² construite avec des matériaux écologiques et pensée pour un confort de vie sain et économique. Elle comprend une belle pièce de vie lumineuse avec cuisine ouverte, deux chambres en rez-de-chaussée et une suite parentale à l'étage avec salle d'eau privative. Deux salles d'eau, WC séparés, chauffage par pompe à chaleur air/air, isolation performante, le tout sur un terrain arboré avec terrasse bois. Au calme, sans vis-à-vis, à proximité immédiate des commerces et sentiers, à seulement 10 min d'Uzès. Contact Nathalie tel: +336 10 03 19 93 mail : nathalie@sinfonia.immo Votre agent commercial Sinfonia Immobilier TSI EI - Nathalie Delputte Inscrite au RSAC de NIMES 880 087 812 Selon l'article L.561.5 du Code Monétaire et Financier, pour l'organisation de la visite, la présentation d'une pièce d'identité vous sera demandée. Les informations sur les risques auxquels ce bien est exposé sont disponibles sur le site Géorisques : www.georisques.gouv.fr Prix net, hors frais notariés, d'enregistrement et de publicité foncière. Document non contractuel. www.sinfonia.immo
